Arkitektens brevkasse: Familien på 4 fik plads til både køkken-alrum og ekstrabad med alternativ planløsning

De kunne ikke se, hvordan de skulle få plads til drømmene, men med lidt hjælp fra eksperten gik kabalen op på overraskende vis.

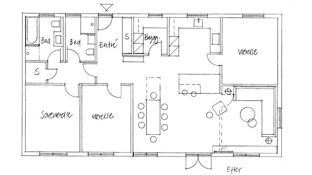
© LONE BARSLUND - FØR

Kære Lene og Aksel

Det er sandt at de to små værelser er meget små, så det er oplagt at inddrage det ene og indrette badeværelse her ved siden af det eksisterende bad, så rørføring m.m. er nemt at håndtere. Det helt lille kammer fjernes helt.

Det ville også være oplagt at lægge køkken og eksisterende spisestue sammen, men jeg kunne godt tænke mig at jeres alrum blev lagt på tværs af huset, så man får fornøjelse af gennemlyste rum og kig til jeres fine have fra køkkenet, så i stedet kan I lægge et nyt stort værelse ud mod vejen og indrette alrum-spiseplads og tv-stue i resten af arealet, der nu har en L-form, hvilket giver ro i sofahjørnet.

Den lille stipling antyder muligheden for at lave endnu et værelse, men jeg synes at stuen er så stor at der er fin plads til en lille arbejdsstation, hvis ikke spisebord eller ø kan
bruges.

Jeres nuværende entré er meget lille, hvorfor der er et stort garderobeskab inde i gangarealet. Det kan I ændre ved at tage noget af pladsen fra bryggerset og derved få plads til et stort skab i entreen. Samtidig med det har jeg flyttet døren til bryggerset fra køkkenet og ud i gangen, så I får en lukket væg i køkkenet at møblere opad med højskabe osv. Jeg tænker at bryggersdøren i facaden er unødvendig, så den er lukket og erstattet af et nyt vindue, så I kan møblere langs facaden som vist.

Alle de her småændringer giver jer et meget større areal at indrette køkken og spiseplads på, således at jeres spisebord nemt kan udvides når I skal være mange. Vask og kogeplads bliver hvor de er i dag, mens den store ø har skuffer på begge sider samt plads til to siddepladser mod stuen.

Bedste hilsener Lone

© LONE BARSLUND - EFTER